REZERWACJA !

Mieszkanie na sprzedaż
939 000,00 PLN , Pow. 55,30 m2
Drukuj ofertę
Drukuj ofertę
Typ nieruchomości:
Mieszkanie
Powierzchnia:
55,30 m2
Typ transakcji:
sprzedaż
Liczba pokoi:
3
Lokalizacja:
Warszawa Ochota Szczęśliwice , Włodarzewska
Rok budowy:
2013
Piętro:
4 na 7
Numer oferty:
323192
Cena za m2:
16 980,11 PLN



Atrakcyjny, komfortowy apartament usytuowany na 4 piętrze budynku z windą,  w inwestycji „Villa Parc” .

Mieszkanie znajduje się na ul. Wodarzewskiej 81,  kilka minut piechotą od Parku Szczęśliwickiego . Z okien rozciąga się piękny, niczym nie zakłócony widok na Górkę Szczęśliwicką i panoramę miasta.

To widne i bardzo ciche mieszkanie, jest gotowe do wprowadzenia bez nakładów finansowych . Wykończone w podwyższonym standardzie, przy użyciu materiałów i dodatków bardzo dobrej jakości.
Jest idealne dla osób ceniących komfort, spokój, bezpieczeństwo i wygodę oraz szybki dojazd do centrum Warszawy.

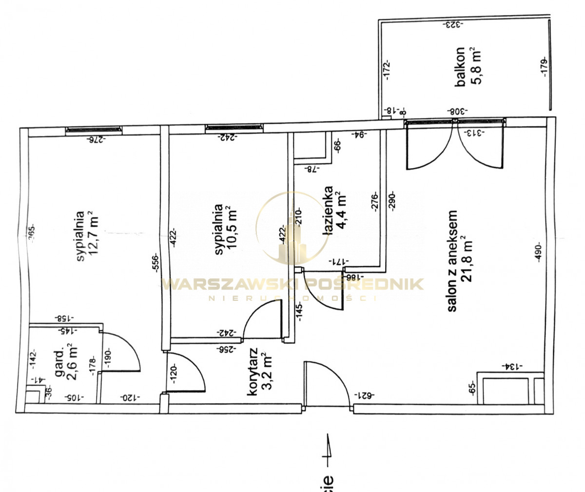
Mieszkanie  ma całkowitą powierzchnię ( bez balkonu ) 55,2 M2 i składa się z :
- salonu połączonego z kuchnią - 22 m2
- przylegającego do salonu balkonu o powierzchni 6 m2 /od strony patio/ z ekspozycją na południe i pięknym widokiem na Górkę Szczęśliwicką  i panoramę miasta
- sypialni ok 13 m2 z przylegającą garderobą ( 2,6 m2 )
- sypialni 10,5 m2 ( aktualnie pokój dzieci )
- łazienki z wanną i wc - 4,5 m2
- przedpokoju 3,2 m2

Mieszkanie ma świetny rozkład pomieszczeń. Jest przestronne i ustawne z optymalnie wykorzystaną przestrzenią.  

W salonie ogromnym plusem jest duże balkonowe okno w pełni otwierane i spory balkon z widokiem na panoramę miasta - nie na okna sąsiadów !

Pokoje są w pełni wykończone i umeblowane . Do sypialni przylega wygodna garderoba. 

Kuchnia wykonana na zamówienie, wyposażona we wszystkie niezbędne sprzęty / Siemens/ oraz wysokiej klasy wykończenia / min. szafki z systemami Blum i Le Mans /
W łazience jest duża , wygodna wanna, dobrej jakości niemiecka armatura.
Oświetlenie led, energooszczędne, Rolety i zasłony w pięknym stylu, wykonywane na zamówienie .
Mieszkanie jest widne, bardzo ciche, komfortowe  również pod względem położenia i widoku .

DODATKOWE INFORMACJE :

Właściciele korzystają z 2 miejsc parkingowych w garażu podziemnym.
Miejsca można przejąc jeśli chodzi o wynajem - 250 zł miesiecznie 
Zakup miejsca parkingowego to koszt 49 tys zl 
Mieszkanie mozna też nabyc bez miejsca parkingowego i bez komórki lokatorskiej .

do mieszkania przynależy komórka lokatorska, dodatkowo płatna - 24 tys zł

Czynsz ze wszystkimi opłatami i zaliczkami , obejmujący całodobową ochronę , monitoring , sprzątanie pomieszczeń wspólnych itp. wynosi miesięcznie 700  zł .
Mieszkanie dostępne w terminie - do uzgodnienia 
Pełna własność , jasna sytuacja prawna .
Księga wieczysta bez obciążeń .
Możliwość zakupu na kredyt bankowy . 
Mieszkanie Idealne dla  singla, pary, rodziny, rodziny z dziećmi  świetne również pod wynajem.

OSIEDLE / LOKALIZACJA 

Osiedle Villa Park to propozycja dla osób szukających stylowego, eleganckiego mieszkania w dogodnej lokalizacji.  Inwestycja to zespól pięciu budynków charakteryzujących się prostotą i lekkością formy.
W patio osiedla znajdują się dwa czterokondygnacyjne budynki otoczone zróżnicowanymi wielkościowo trzema blokami. Całość składa się z 255 mieszkań .

Dla zwiększenia poczucia bezpieczeństwa mieszkańców teren osiedla został zamknięty dla ruch samochodowego. Teren inwestycji jest  ogrodzony i strzeżony. Na przestronnym patio znajdzie się zaś plac zabaw dla dzieci oraz miejsca do odpoczynku - ławeczki oraz alejki spacerowe pełne zieleni.
Inwestor : Bouygues immobilier 

Mieszkanie położone w zielonej i cichej części Ochoty przy ul. Włodarzewskiej 81
 W najbliższej okolicy pełna infrastruktura - sklep Stokrotka, piekarnia Grzybki, Barber, pralnia. 
Tuż obok lokalny warzywniak, świetna włoska restauracja Trattoria da Antonio, restauracja SAITO sushi, bary z domowym jedzeniem, klinika medycyny estetycznej sklepy typu Żabka, paczkomaty, stacja miejskich rowerow, sklepy z żywnością ekologiczną.
Bliskość Rynku Włodarzy, gdzie znajdziemy m.in. liczne sklepy, restauracje i pocztę.

W 4 minuty dojdziemy do Parku Szczęśliwickiego jednego z najpiękniejszych warszawskich parków z bogatą ofertą rekreacyjno-wypoczynkową (restauracje , całoroczny stok narciarski, odkryte miejskie baseny, place zabaw, siłownie plenerowe i ścieżki rowerowe).

W najbliższej okolicy znajdziemy również: liczne przedszkola i żłobki, kościół, Rossmann, Biedronkę i Lidl

 W promieniu 1,5 km znajdują się duże centra handlowe i sklepy wielkopowierzchniowe - Blue City, Atrium Reduta oraz Makro, Castorama, E.Leclerc, BRW Meble.


Pomimo, iż Doradcy z Firmy Warszawski Pośrednik Nieruchomości Sp. z o.o. starają się uzyskiwać rzetelne informacje na temat oferowanych nieruchomości i przykładają do tego szczególną wagę, nie zawsze jednak są w stanie zweryfikować wszystkie otrzymane od osób trzecich informacje.
W związku z powyższym prezentacja oferty nie jest ofertą w rozumieniu Kodeksu Cywilnego i ma charakter wyłącznie informacyjny.

Nieprawidłowy adres E-mail